鋁塑板
產品介紹
百美牌鋁塑板采用西南鋁3000、5000系列,齊魯石化專用塑料,美國DUPONP高分子膜,美國PPG70%以上氟碳含量涂料生產復合而成,年產量400萬m2。
防火鋁塑板,采用國家防火研究中心A2級、B1級、B2級防火塑料芯材復合生產而成,達到國際高水平。
納米抗污鋁塑板,采用中科院涂料研究所最新研制的納米涂料復合而成。具有超強抗污能力。
氟碳膜鋁塑板,采用德國氟碳膜工藝,提供二十年耐候質保。尤其對原有熱轉印和花色輥涂不耐候的缺點作了全面的質量保證,對于崗紋顏色和木紋顏色和其他多色涂裝的鋁塑板,用在外墻裝飾質量更加優越可靠。
同時生產、不銹鋼塑板、銅塑板、花紋鋁塑板、沖孔鋁塑板、雙面鋁塑板、異形寬幅鋁塑板、鏡面鋁塑板、凹凸鋁塑板、外墻崗紋鋁塑板、金拉絲鋁塑板、銀拉絲鋁塑板、變色龍鋁塑板、上海鋁塑板,江蘇鋁塑板,南京鋁塑板,浙江鋁塑板,杭州鋁塑板,蘇州鋁塑板,南通鋁塑板,安徽鋁塑板,合肥鋁塑板,福建鋁塑板,福州鋁塑板,無錫鋁塑板,常州鋁塑板,鎮江鋁塑板,泰州鋁塑板,揚州鋁塑板,淮安鋁塑板,鹽城鋁塑板,宿遷鋁塑板,徐州鋁塑板,連云港鋁塑板,嘉興鋁塑板,湖州鋁塑板,紹興鋁塑板,寧波鋁塑板,臺州鋁塑板,溫州鋁塑板,麗水鋁塑板,衢州鋁塑板,義烏鋁塑板,舟山鋁塑板, 金華鋁塑板,永康鋁塑板,蚌埠鋁塑板,滁州鋁塑板,蕪湖鋁塑板,馬鞍山鋁塑板,銅陵鋁塑板,安慶鋁塑板,宜興鋁塑板,江陰鋁塑板,張家港鋁塑板,昆山鋁塑板,常熟鋁塑板,吳江鋁塑板,太倉鋁塑板,植絨吸音鋁塑板、杜邦腹膜鋁塑板等鋁塑板,是目前墻面裝飾材料。

生產工藝
連續熱貼復合線是鋁塑復合板成形的關鍵設備,其作用是使鋁材、PE芯材與高分子膜在連續高熱高壓的作用下牢固地粘合,形成平整板面。公司選用進口高分子膜,依先進的設備,完美的工藝,嚴格的控制,使鋁塑復合板具有超強的剝離度,已經超出國際知名品牌的指標。

1.塑料擠壓→2.塑板成形→3.貼高分子膜→4.復合鋁卷→5.熱復合→6.水輥冷卻→7.風機冷卻→8.校平成形→
9.質量檢驗→10.剪切→11.成品
產品特性

技術參數

加工方法

開槽折邊方法
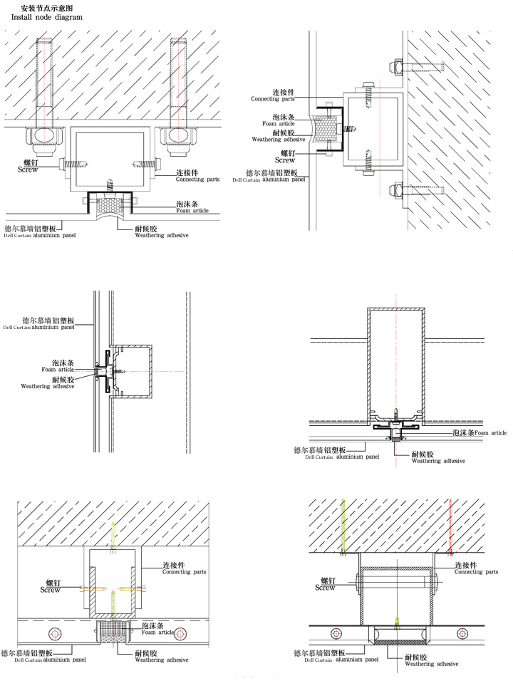
安裝方法節點圖


定制特殊的顏色
本公司有常規三十多種顏色提供給客戶挑選,客戶也可以根據《國際標準色卡-老勞爾色卡 Old RAL Color Card》來挑選顏色。
如果您需要非常規顏色 :
1、首先需要提供一個所需顏色的樣板(最好是以金屬板為基材的樣板,其他材質的樣板也可以,但配色準確率不如金屬板樣板)。
如果您能夠知道所需顏色的油漆廠家編號或其國際標準色號,則操作程序就會非常簡單,配色的結果也會很準確,只需要將該色號提供給我公司的顏色專家給予確認即可;
2、新顏色樣板將由雙歐公司的烤漆專家與我們的烤漆顏料供應者共同配制,正常情況下需要大約1周的時間可以提供給您新配顏色的樣板;
3、您收到樣板后需要盡快給予書面確認,收到您的確認后我們將按照定單要求正式安排訂貨生產。
產品用途
鋁塑復合板本身所具有的獨特性能,決定了其廣泛用途:
用于大樓外墻、帷幕墻板、舊樓改造翻新、室內墻壁及天花板裝修、廣告招牌、展示臺架、凈化防塵工程
出口裝柜

上一篇:精密鈑金
下一篇:墻板









